Cape Cod Update

Design Development

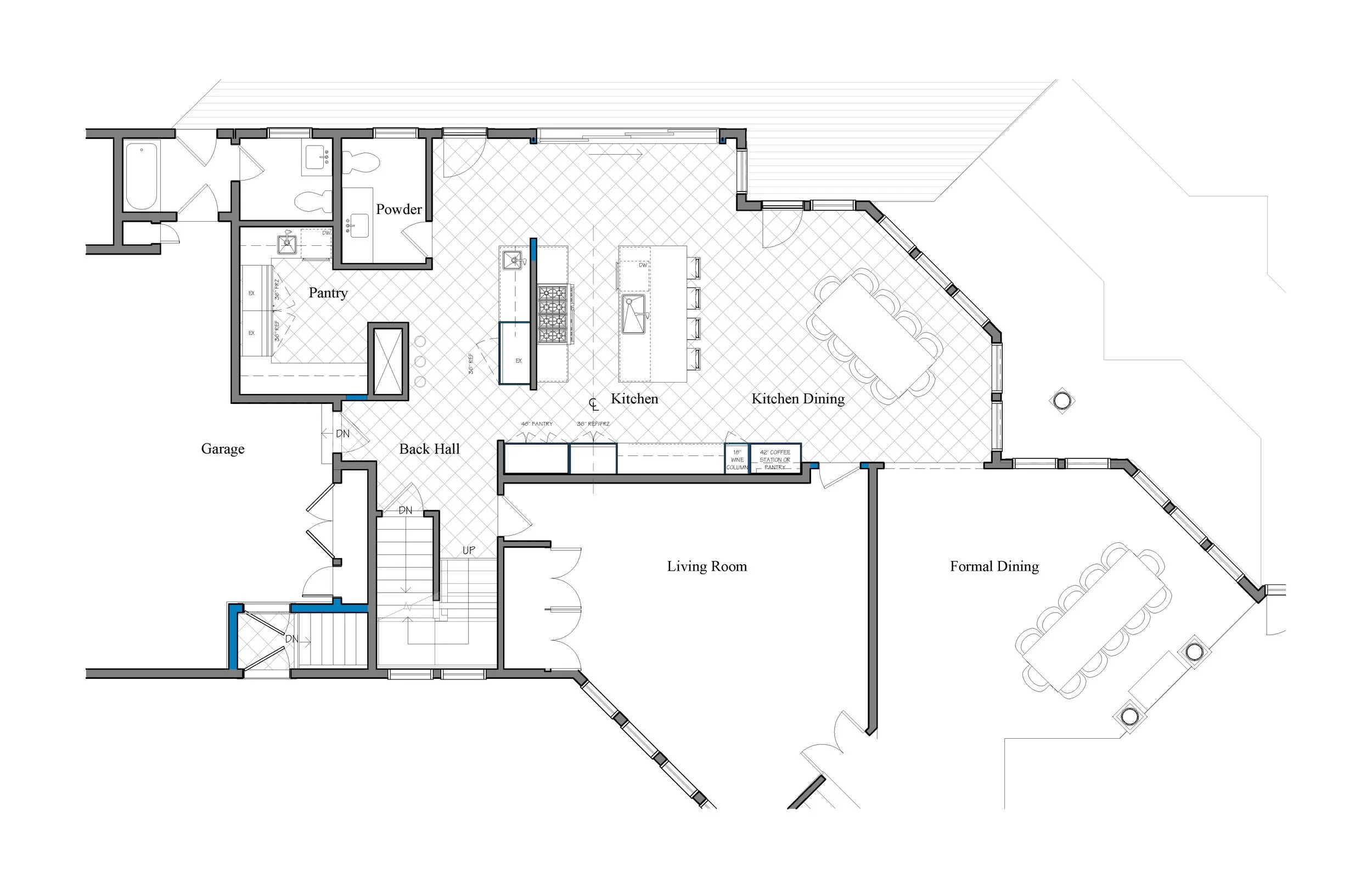
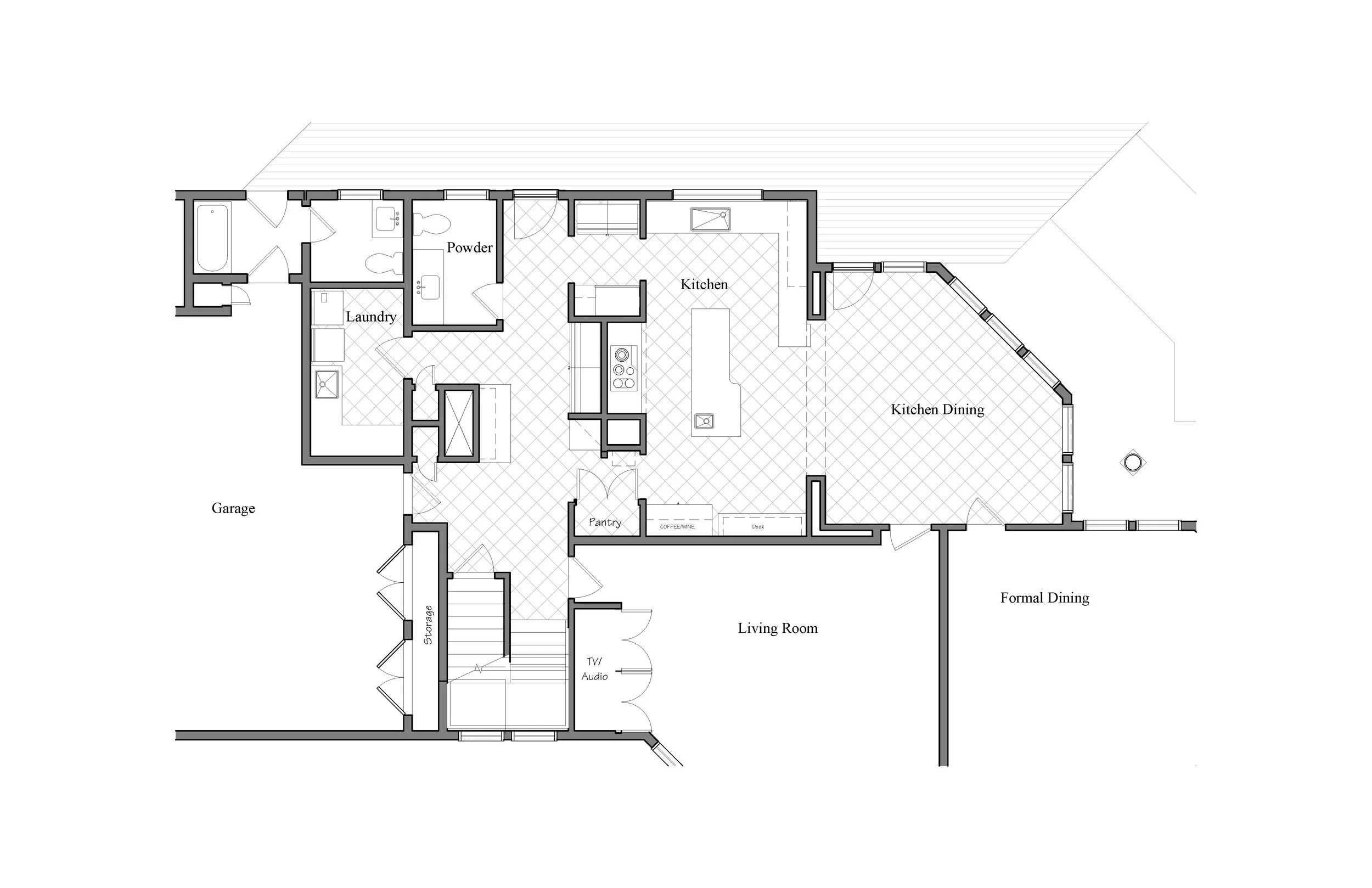
Our clients recently purchased an oceanfront home originally built in the 1990s and envisioned it as a place for large family gatherings and summer nights. The existing kitchen layout was awkward and felt disconnected from the surrounding living areas. The design reconfigured the layout, removed select walls, and introduced a large glass slider to strengthen the connection between the kitchen and the outdoor living spaces while also framing views to the water.

The primary suite was also reimagined. The original bathroom was tucked beneath a tight roofline and lacked windows and natural light. By expanding an existing dormer, the design creates a more spacious suite and brings daylight into both the bedroom and bathroom. To ensure the addition blends seamlessly with the home, the new dormer uses a modified jerkinhead form that reflects the character of the existing rooflines while maintaining a cohesive exterior appearance.

Previous
Previous

Bowditch Place Restoration

Next
Next

A Bathroom that Grows With You